
冷却塔选型设计培训|暖通设计师 郭鹏
一、冷却塔选型设计关注点

二、本次培训讲师介绍

三、关注点展开介绍
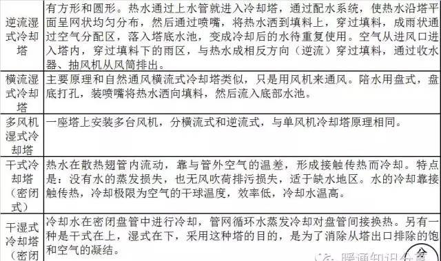
①冷却塔分类
1:自然通风
2:机械通风
看图说话
(性能参数对比表)




(示意图)


(样图)




②冷却塔选型主要参数
主要为:
1:总热负荷;
2:冷却水量;
3:进出水温度
计算公式

注:溴化锂机组取1.8~2.2,温差取6~9℃;
补水量:飘逸损失+蒸发损失+排污损失+泄漏损失;
取冷却水量的1~2%。
③空调系统中冷却塔选型
举例计算:
按照单台制冷机组2130KW,2台设备选择冷却塔流量。
则:L=2130*1.3/1.163*5=476m3/h
或
L=(2130+2130/4.5)*/1.163*5=447m3/h
安全系数取1.1,则492m3/h
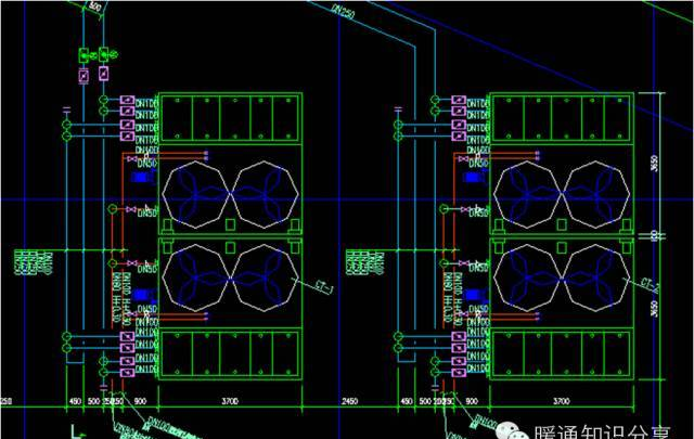
看图说话












④冷却塔配置原则
1:宜布置在裙房或主楼的屋顶上;
2:必须设置在通风良好的场所;
3:充分考虑噪声和漂水对环境的影响;
4:放置进风和排风短路;
5:冷却塔进风口侧与相邻建筑的净距离不应小于塔进风口高度的2倍,周围进风的塔间静距离不应小于塔进风高度的4倍;
6:宜单排布置;
7:若多排布置时,长轴位于同一直线上时,相邻塔排之间净距离不小于4米;相互平行布置的塔排之间的间距不小于塔进风口高度的4倍,每排的长宽比不大于5:1;
8:冷却塔周边要有检修通道和管道安装位置,通道不小于1米;
9:不应布置在热源、废气和油烟的排放口附近。
看图说话

⑤冷却塔其它应用
1)地源热泵系统中的削峰作用
夏季冷负荷4206KW,运行时间900小时,机组能效比5.7;
冬季热负荷2930KW,运行时间1200小时,机组能效比4.5。
看图说话


2)过渡季节免费冷源使用
1:直接供冷;
2:间接供冷。
看图说话




过渡季冷负荷取2200KW,供回水温差取2℃。
则:
需要循环水量为:2200/1.163*2=945m3/h
可以取2台500m3/h的冷却塔。


以上图片部分来自网络、规范、图集等
四、分享君总结
冷却塔的选型说不难也不易,只是根据水量就定个型号,这是不负责任的做法,望各位同仁们能详细计算选型,这样毕竟来的放心点。

暖哥有话说
现在马上留言指出图中哪有错,
展现你专业功力的时候到了!
大家来找茬

1.《冷却塔选型,看这篇就够了》援引自互联网,旨在传递更多网络信息知识,仅代表作者本人观点,与本网站无关,侵删请联系页脚下方联系方式。
2.《冷却塔选型,看这篇就够了》仅供读者参考,本网站未对该内容进行证实,对其原创性、真实性、完整性、及时性不作任何保证。
3.文章转载时请保留本站内容来源地址,https://www.lu-xu.com/fangchan/7416.html