1x1相关介绍,{ ' rich _ content ' : { ' text ' : ' ',' spans' : null},' video...
1x1相关介绍,{ ' rich _ content ' : { ' text ' : ' ',' spans' : null},' video...
1x1相关介绍,{ ' rich _ content ' : { ' text ' : ' ',' spans' : null},' video...
1x1相关介绍,{ ' rich _ content ' : { ' text ' : ' ',' spans' : null},' video...
1x1相关介绍,{ ' rich _ content ' : { ' text ' : ' ',' spans' : null},' video...
1x1相关介绍,{ ' rich _ content ' : { ' text ' : ' ',' spans' : null},' video...
祝尼魔小屋星露谷物语温室布局,首先你要完成社区任务,完成祝尼魔献祭任务或者加入jojo会员来解锁所有社区设施,包括大巴车,矿车,吊桥,矿洞门口那个石头的爆破,温室。完成...
婷美小屋 LoveMyFace面膜一共有7款纳豆面膜,分别是葡萄籽鲜亮焕彩面膜,雪耳深润滋养面膜,纳豆清润补水面膜,水分胶原弹润柔滑面膜,芦荟水嫩舒缓面膜,樱花粉嫩莹润面膜,海...

户型图前后对比
很多人可能认为,俩大人俩孩子一定是挤在这个46㎡的小家里,然而通过房主的合理搭配,却让这一家人完美的住了进来,而且超顺心,究竟是怎样的设计呢?让我们继续往下看吧!


为了可以让空间显得整洁大气,房主用了嵌入式的壁柜和隐形门的设计,弱化了柜体本身带来的突兀感。
右边的壁柜也设计得非常巧妙,这个视角的背后原本是卫生间的位置,而且改造前的餐厅与客厅比例严重失调。

改造后,卫生间逐渐移动到餐厅附近,并且利用移动出来的多余空间,定制可这个嵌入式的储物柜。

这样留出了充足的镂空区,有了收纳杂物的空间,而且增加了换鞋凳和,鞋架以及伞具的收纳区。

全屋的主空间都铺设的这种纯原木地板,但在进户区却铺了少量六边形的小白瓷,造型感非常强。

改造后,也拥有了拓展空间,并且打造了嵌入式的餐边柜,上下可以用来收纳物品,中间则可以摆放一些果盘,咖啡机等,方便使用拿取。

走进厨房,这个位置原来是卧室的区域,经改造后变成厨房,并且在窗外改造了烟道,也恰好设置在窗户的上方,用吊柜遮挡了烟道的位置,看起来不会突兀。

厨房的空间很小,但橱柜和操作台都用到了最大化,在这样狭小的空间里发挥出了最大价值,墙砖的点缀设计也创意感十足。

房主希望厨房离客厅更近一些,所以在中间加了一块钢化玻璃,这样让整体的空间感更为通透,在做饭时也可以看到孩子的动向。

客厅是孩子们最爱玩耍的地方,也是全屋采光最好的地方了,飘窗改造成了一个休息区,铺了一层软垫,闲暇时间也可以坐在上面休息看看风景。


这套房子没有阳台,所以利用了客厅顶部的结构,来安装了一个隐藏式的晾衣架,平时可以将洗好的衣物甩干后,挂在上面,非常方便。

电视柜有一个隐藏的收纳区,特别巧妙,下方做成了抽拉式的柜门设计,柜门上还摆放了一些孩子爱看的图书,平时可以将孩子的玩具放在柜门里。



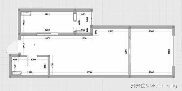
幸也不幸。这套房子是个建面60平,实用面积才40平米的一个长条形开间。而且是数年前限房价、限套型时,别人选剩下的房子。
最大的难题是这户型不好改两居,有了孩子怎么办呢?然而在帝都,还是先上车,再考虑换车吧。
长条形开间的痛
靠精准尺寸化解

长条开间户型图
两人很快决定以北欧风为主,装修材料一定要环保。Merlin负责布局和尺寸,妻子负责配色和装饰。

房子设计图
Merlin本身是产品经理,对待自家房子这个产品,他认为尺寸考量是重中之重,一毫米都不能有误差。
入户处放置了大鞋柜,用异形地垫和铁艺屏风隔出了一个玄关,用来放置猫砂盆和一些随身包袋。

整个客厅宽度3.3米。客厅电视墙只留2.5米的空间,电视柜1.8米,边柜0.4米,猫爬架最后定制了0.3米宽,不大的客厅刚好能把这几个大家伙塞下。

为了扫地机器人能有栖身之地,释放小空间的透气感,基本家具都是选的有脚的,拒绝大体量的箱体形式。
两人花了很多时间选沙发。开始为了颜值,去看过几款网红沙发,都不满意。
最后在闲逛时,一下就瞄准了这款沙发。屋主主要看中这款沙发的细腿底座,素雅的颜色,不错的坐深靠背,198cm的尺寸也刚好合适。

北欧风嘛,沙发上总要有一条看似不经意实则摆了无数次的毯子
沙发跟前的纯实木茶几也花了很长时间定做。120cm*60cm的大小很实用,无论是平常喝茶吃饭还是把弄电脑,使用频率都很高。

毕竟小户型得时刻考虑着收纳,这款茶几也藏着小心机。里层是可以储物的,升起来后的高度,也符合人体工学。

同样的,在买沙发上方的搁板和挂画做装饰之前,Merlin也是先把布局按照比例画出来。下搁板120cm,上搁板90cm。

然后在沙发边柜的区域上方找中心,大部分人站立时视觉中心高度大约150cm上下,这样很快能定下来安装位置。


挂画尺寸30*40cm 、50*70
卧室床和柜体
全都讲究刚刚好
卧室和客厅就是一门之隔。推拉门做了四扇,两轨道,用的双层钢化玻璃,不过隔音效果基本没有。

整个卧室是横向3.3米,纵向3米,做了窗帘盒,挡光效果好一些。
卧室的床是1.56米*2.26米,化妆桌是100cm宽,两者刚好紧紧依偎在卧室内。

床的对面是1.8米*2.4米的衣柜和70cm宽的挂衣架,也刚刚好。

屋子虽小
也要有餐厅和吧台
最开始,Merlin在淘宝找了一款纯实木的餐桌,大概四千块,后来核算装修费用时,加总一看有点心慌。于是还是选择去宜家把这个999元的折叠餐桌扛回来。

餐桌放在了走道,姑且叫共享面积。打开一侧时,可供3人使用,另一侧打开的话,能坐下6个人,挺节省空间的。

餐桌后面的黑板是磁性黑板贴,然后买了桐木条贴做边框
除了此处的小餐厅,Merlin还一直希望有一个小吧台,可以放松地喝喝小酒。

吧台放在了沙发边
特别是对于自家小户型来说,安置一个吧台也能起到区域分割的作用,台面下加上柜体还能承担收纳作用,功能复用。

房子应急预案
榻榻米是小救星
Merlin是一个对未来充满期待,但现实中会作最坏打算的人。他说不知道什么时候能换上大房子,如果生了孩子还没换成,那么就必须有个应急方案。

吧台旁边的榻榻米就是这样诞生的。目前,榻榻米充当了储物大哥的角色,行李箱、被子,杂物,都塞在里面了。


然后按照实际尺寸比例重新布线,调整了电线拐弯的高度,算准每一处的角度,强迫症的他一毫米都要精确到。

爱猫的他顺便在榻榻米背后的墙上,挂了一个28元的猫咪画布。

厨房别着急改动
先按习惯做一个月的饭
寸土寸金的小厨房,动手一定要严谨。Merlin同样为厨房做了尺寸图。

厨房布局完成后,他也不打算着急买东西,而是按照日常做饭的习惯做一个月,再看要购买哪些置物架。

原则是能不沾台面的东西,都悬空,这样操作台面积会大大增加,方便很多。

狭小的卫生间
能干湿分离就满足了
卫生间原本长3.6米,为了做塌塌米,缩短了1米。好在也够用,左侧是马桶,中间洗手盆,右侧淋浴房。


智能家居
是小户型好帮手
Merlin给家里配了不少智能家居,一是为了方便,二来也给小空间增加了一些娱乐性。
进门是指纹锁配合蓝牙和小爱音箱,每次下班回家,打开门,玄关灯自动亮起,还有指定语音播报,Merlin觉得仪式感满满。

家中走道的三个灯,用的是飞利浦智能灯泡,配合米家智能家居,也是开门就亮,很方便。

配合小爱同学和网关,家中还有许多别的场景实现了智能化,比如窗帘、电视、电饭煲、空调等等。屋主觉得机器能解放双手,何不快乐拥抱现代生活呢?

现代快报讯(通讯员吴继原记者顾潇)母亲离家出走,父亲患有严重腰椎病,扬州高邮15岁女孩晓晚(化名)的生活陷入了困境。高邮市太阳雨志愿者协会的志愿者们向晓晚伸出了...

对印度比较了解的人都知道,在印度有很多人信奉宗教,这些人大部分都是素食主义者,平时不怎么吃肉,更喜欢吃蔬菜和素食,而我们中国则不同,更多的是肉食主义者,相关资料显示,中国一年的人均肉类消耗能达到62公斤!

中国的肉类食物从何而来呢?一部分来源于进口,一部分则是我们中国自己用粮食喂养出来的,大家想象一下,在大量粮食用作畜牧业生产的情况下,我国的粮食消耗量又怎么可能会低呢?

事实上,除了畜牧业之外,我国有很多产业都会消耗掉大量粮食,例如生产酒精、白糖、提炼植物油等等,在众多产业共同运作的背景下,我国粮食消耗量极大,因此为了维持市场需求,我国就只能选择向海外进口,而印度的需求非常少,在粮食方面自然不会紧缺。

而且印度还是一个贫富差距极大的国家,并不是所有人都能吃到粮食,据了解,在印度有25%的居民处于挨饿状态,这也就是说,有2.2亿左右的印度人吃不饱饭,他们出口粮食也算是无奈之举。
大家都知道,任何一个国家的发展都离不开粮食,但也并不能只有粮食,印度想要获得更好的发展,他们就只能选择出口粮食,用卖粮食赚到的钱去购买其他产品,如此一来,印度就会出现一个现象:有钱人卖粮食,穷人吃不起粮食。

说白了还是印度高科技产品太少了,工业发展要落后于其他国家,所以印度人只能勒紧裤腰带用粮食换钱,这一点与我们中国比起来则有很大差距,毕竟我国工业基础坚实,根本不需要拿农业来换取发展资本,而我国之所以进口外国粮食,并不是说我们的粮食不够吃,主要目的是想促进市场发展,使我们的农业发展更快更好。
![[科普小屋]粮食产量不到中国一半,为何印度大量出口,中国却满世界进口?](https://www.lu-xu.com/pic.php?url=https://pics3.baidu.com/feed/b812c8fcc3cec3fd944ffcac8627713786942729.png?token=53cc13de74b322d0ddf2c5e6462e870f)









![[科普小屋]印度游客:中国不可怕,可怕的是中国人把“高科技”当玩具娱乐](https://www.lu-xu.com/pic.php?url=https://pics4.baidu.com/feed/63d9f2d3572c11dffaff59e23c5ac1d8f603c24f.png?token=a8f1c3e5cfdbdbecdcb54486f46b032f)