
2021
·
整屋案例
案例风格:现代
案例面积:90㎡
案例户型:三室二厅
宋先生与妻子是在2017年认识,他们同是基督徒。他们对于整体空间希望温馨舒适的同时,能散发着有爱的情感氛围。功能方面保持衣、食、住的平衡,最大程度上开放公共空间,这样能让孩子更安全地去自由活动。
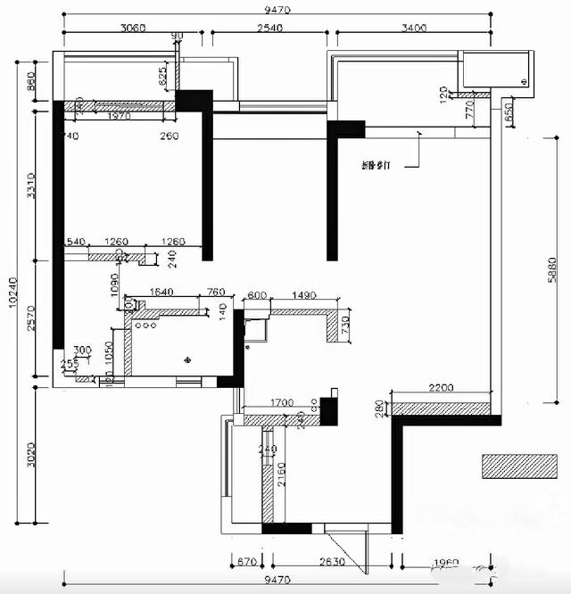
关于户型

户型分析:
1. 厨房空间改造为中西厨。
2.厨房阳台并入卫生间一起使用,干湿分区,独立放置洗衣机。
3. 书房墙面拆除,整体往后移,扩大走廊面积,使公共空间更为宽敞。

改造设计:
1.围绕三个人的生活动线,拆除、合并部分空间,删繁就简扩大面积感的同时增强空间功能。
2.将客厅隔墙后的房间设计为半开敞空间,实现更大的光线。整体使用自然色调与温润的木材,既响应日常家务的实用需求,又能抚慰心灵。
3.采用无主灯和局部线性灯光设计,考虑层高偏低的原因,所以采用明装射灯形式,减少压抑感,并使顶面更显干净简约。
01.
玄关

沿进门右侧墙壁设计900mm+2540mm的玄关区域,并与电视墙连为一体,在视觉效果上拉长整个房间的同时为出入居所增添仪式感。

02.
客厅

朝北的空间光线会受到影响,所以阳台纳入客厅一并使用。

将紧邻的隔墙与房门进行拆除,打破局限的原始空间感,设计为简洁有力的玻璃立面,让更多的光线照射进来。


墙面则整体大面积留白去提高空间的明度感,并搭配富有质感的原木材质,在表达干净,清爽的同时不缺乏温润的氛围感。

家具使用低饱和度的色彩,舍弃华而不实的装饰,聚焦对材料本身的探索之中。

空间的气场也反映了当下居住者对生活的理解与认知,如果氛围恰当,那么他们就会与空间产生千丝万缕的情感联系。
03.
餐厅

在面积不够宽裕的空间中,岛台餐厅能够更好的平衡空间之间的关系。

大理石台面+木质餐面长度2200mm,宽度750mm,满足家人用餐的同时,两边过道也不显拥挤。西厨墙面铺贴灰水泥质感墙纸,与白墙对比出空间层次。

为了不让空间在视觉上过于压抑,只在下部设计了一排橱柜,上部以开放形式呈现。通过颜色、材料及质感,让日常生活拥有着漫不经心的闲适。
04.
厨房
厨房在够用的基础上将阳台部分划分给卫生间使用,因空间中没有自然光源。


橱柜是厨房中不可或缺的存在,由吊柜、橱柜、台面组成,不仅承担着收纳和料理的功能,还具有一定的装饰作用,能够完善厨房整体设计,给予下厨人一份愉悦的下厨体验。
但在安装橱柜的过程中,考虑到厨房面积、美观效果、收纳物品数量等问题,人们对是否要安装吊柜,安装什么样的吊柜才合适,纠结不已。

因此,本期造居君就从橱柜中的吊柜出发,和大家聊聊这些问题
要不要安装吊柜
针对这个问题,结合个人需求和空间特性,可以从吊柜安装的优缺点自行考量。
安装优点
完善装饰效果

吊柜作为橱柜的一部分,在地柜、台面都完善的情况下,安装吊柜能够为厨房营造和谐统一的视觉效果,增强装饰性。
增强厨房储物能力


大部分的厨房会安装抽油烟机排除厨房油烟,而安装吊柜,可以很好的遮挡抽油烟机管道和一些线路,并且在做到顶的情况下,还能减少清洁的工作。
安装缺点
定制费用高

橱柜是一个整体,在定制的过程中,由于做工和材质不同,费用也会相对于较高。
增加厨房拥挤度




现在大家更加重视操作台使用的舒适性,一般来说操作台的高度要根据主人的身高决定,最理想的高度就是主人手臂自然抬起时的高度,可以让操作台使用起来更加方便舒适。



2、油烟机柜是否包进橱柜
有很多设计师在装修时会建议户主将油烟机包进橱柜(如下图位置)。理由主要是以下两点:
1、看起来更加规整。
2、空隙区域可用来收纳。

其实小编觉得,很多油烟机柜尤其是T型的油烟机最好不要包进橱柜,因为油烟机柜和油烟机相邻,炒菜的时候温度又很高,会导致油烟机管道内部和油烟机罩一直处于高温状态。所以存放物品是不现实的,并且该位置比较高,存放和拿取东西很不方便。


三、没有设计开放式搁物板
要说厨房最容易乱的地方,那肯定就是操作台面了,毕竟一些调料瓶、电饭煲、榨汁机等小家电都存放在上面,如果没有做好收纳,是很容易混乱的。
这个时候开放式搁物板就很重要了,一些零散的小物件都可以收纳在此处,方便实用。





四、吊柜没有设计到顶
现在很多户型的厨房面积并不大,为了获得更多的收纳空间,吊柜绝对是不能少的,并且吊柜最好可以设计到顶,不仅可以最大程度增加厨房的收纳能力,打扫起来也更加方便。

有很多人觉得吊柜拿取物品不方便,其实解决方法是很多的。
1、厨房有些物品使用的频率较低,这些物品就可以存放在吊柜;
2、如果不太担心预算,可以设计升降式吊篮,这样就能完全解决物品拿取不方便问题。


五、没有设计抽屉柜
对于地柜来说,设计样式一般包括隔板式和抽屉式。小编认为,抽屉式使用起来会更加方便,因为拉开抽屉,物品一目了然,而隔板式使用起来还需要下蹲,更加吃力。


户型调整
原始户型
标准的一室两厅,中间隔墙较多,显得整体户型各个独立空间狭小,特别局促,储物空间也非常有限。

调整后户型
在户内空间有限的情况下,屋主想把家装成北欧现代极简风,既要满足足够的收纳空间,且不影响空间感,还要兼顾高颜值。

在这个想法的指导下,屋主做了如下调整:
①砸掉室内所有的非承重墙,尽量都用柜子代替,满足日常收纳;
②厨房用双面黑色玻璃隔断,通透感更强,不显局促;
③打通原本的两个小卫生间,改为一个L型卫生间,并借用卫生间空间,扩充主卧空间,增加衣帽间。
厨房
屋主家的厨房设计是一大亮点,两面墙体都用黑色玻璃隔断隔开,既避免了油烟,又显得客厅足够通透,关上门,从客厅看去像一个盒子。

黑色窄框的设计,轻盈感、极简风十足!

为了遮挡橱柜,下半部分用了黑色模板。选择的是两开移门,全开后藏在固定隔断后,节省空间。

纯透明的厨房,细节就显得非常重要,稍不注意就会毁掉所有美感。
本着这一原则,屋主将燃气热水器藏在了柜子里,墙面上没有裸露的管道,看起来干净舒适。

不过,这种设计安装前,有两点要注意:
①一定要注意定好柜体尺寸,避免后期装不上的麻烦;
②就是要选择能藏起来的热水器,一般室外型和强制平衡型是可以藏起来的,具体咨询厂家。
客厅
一眼望去,整个客厅是现代极简的北欧风格。大面积的白色乳胶漆墙面,搭配无回形线条的吊顶,显得层高更高,没有压抑感。


整个客厅无主灯设计,而是选择吊顶下来10公分,直接装上筒灯,让客厅的光线更有层次感。
电视柜是屋主现场做的,一整条爵士白大理石做成的台面,自然干净,又有些许轻奢之感。

北欧风格的黑色钢制边桌,不占空间,质感十足,搭配咖色沙发,耐看舒适。

走廊
黑白色系的走廊,搭配上屋主最爱的立体格子画,充满浓浓的时尚感。

餐厅
餐厅的一侧,做了一排深65cm的柜子,冰箱可以完全嵌入,顶部的中央空调也没有突出,视觉感受极好。

通顶的柜体设计,能收纳客餐厅物品,中间的镂空部分,可以放咖啡机、餐桌零碎等,兼具着餐边柜和吧台的功能。
原木色的餐桌和黑色椅子,依然沿用整屋的主色系,毫无违和感。

卧室&衣帽间
主卧内,屋主将原来的露台包了进来,做了全橡木板包围的一个独立小空间,整个卧室立马感觉温馨了许多。

后期使用过程中,还能根据实际需求更换场景。
放上一把椅子,就是休闲区,坐在这里读书喝茶,悠闲自得。

有小孩以后,还能放上婴儿床,可可爱爱。

和客厅一样,卧室依然是无主灯设计,床两侧选择了对称的,北欧ins风线条吊灯,逼格满满,且满足屋主睡前阅读的需求。

为了增加衣帽间,屋主将卧室向外扩充了一些,占据了卫生间的一部分空间。
衣帽间的柜门是纯白色、无门框设计的,关上门的时候,和白色墙面融为一体,存在感很低。

为了节省空间,柜门选用的是折叠的,柜体是原木色隔板组成,收纳空间足够。


床尾处,做了一整面的柜子,能够容纳孩子的所有日常物品,中央空调直接安装在柜子顶部,省去了专门做吊顶的麻烦。

书房
书房也是白色系为主,白色乳胶漆墙面+一整面墙的白色柜子+白色百叶窗,干净通透。

整面墙的柜子,不仅能收纳书房用品,都能够当个小仓库用了。
玄关
进门右侧的玄关位置,装的是有趣好玩的豆豆挂钩,大小不一,颜值颇高,灯光打下来的投影也特别有趣,屋主回家后的衣物都可以挂在这里。

旁边的玄关柜,柜子里面能收纳鞋子,中间镂空的部位放钥匙和杂物,下面还有懒人踢,回家换下的鞋子踢进去,很方便。
简单的放一个小木凳,就解决了蹲下换鞋的问题。
卫生间
卫生间是除了厨房和卧室外,屋主家的另一个亮点。
屋主将原来的两卫合二为一,改为L型,将淋浴间和洗漱间分隔,满足干湿分离的需求,每个空间也都大了很多。

淋浴房选择的是黑白两色,黑色地砖和五金,白色墙砖,搭配起来,简约大气。

侧面还做了多层壁龛,玻璃分隔,方便收纳洗浴用品。


针对这个问题,我以前没有找到明确的答案,但是这次去了表姐家玩,我才发现原来厨房里面可以这样布置,各种瓶瓶罐罐和厨房用具都能被收纳起来,整个做法还是比较简单的,但是却能让厨房变得干净整洁不占地,对此我觉得还是可以好好借鉴一下,如果你也在为这些物品的存放而烦恼,不妨跟我一起学起来吧,相信你会收获到惊喜哦。

1、水槽上方沥水架:每次洗完的碗碟想要放置在橱柜里面,都需要一段距离,这段距离很容易让清洗好的碗碟出现沥水的情况,到时候不仅会弄湿台面,甚至还会让水渍滴落到地面上,收拾起来会特别麻烦,再加上厨房是一个油烟重地,如果对面上还有油渍,加上这些水渍就很容易让人摔倒,这对于家里有老人和孩子的家庭来说,简直是一件恐怖故事。

因此,表姐为了避免这种情况的出现,直接在水槽上方摆放了一个沥水架,容量很大,各种碗碟、刀具、筷子、砧板、锅盖、锅铲等厨房用品都能被收纳好,拿取也特别方便,用完后放回原处,这样厨房就能变得干净整洁很多,而且还自带沥水的设计,各种物品放在上面后不会那么容易滋生细菌,使用起来更安全和卫生。

而且这款水槽上方沥水架还采用了环保的烤漆材质,不易生锈,特粗双杆L型的设计,结构会更加的平稳,强悍的承重力,稳固不前倾,自由伸缩的设计,能够根据水槽的大小和我们的需要进行调整,不会遮挡光线也不会影响我们的烹饪操作,使用起来会更加顺手。

2、壁挂调味料:大多数朋友都知道,为了让整个厨房变得更干净整洁,还是需要用统一的调味盒来装调味料,只有这样,才不会让整个小厨房变得凌乱,但是这些瓶瓶罐罐放在厨房的台面上,每次拿取都需要我们翻找半天,这只会给我们的烹饪带来一系列的麻烦,而且 还很容易把其他的调味品给弄翻,收拾起来会特别的麻烦。

所以我们要想办法把这些瓶瓶罐罐放在一个便于拿取的地方,表姐就把墙面的空间给利用起来了,入手这款壁挂调味料来帮忙,把它安装在厨房墙面的转角处,这样就能充分的利用角落的空间, 各种瓶瓶罐罐摆放在上面,看上去干净又整洁,而且还不会占空间,找寻物品能够一目了然,拿取都特别方便。

这款壁挂调味料的收纳能力还是挺不错的,承重能力也比较强大,免打孔打孔的两种是安装方式,我们可以根据需要做出决定,除了瓶瓶罐罐外,还能收纳其他的厨房用品,镂空的设计,能够防止物品出现积水。
免打孔厨房置物架壁挂式不锈钢家用大全砧板菜板刀筷子调味料收纳
而且还能保证通风和干燥,从而避免细菌的滋生,使用起来会更加放心,采用新抛光技术,光滑平面不伤手,价格也比较实惠,有兴趣的朋友可以入手体验。

3、下水槽伸缩置物架:除此之外,厨房的锅碗瓢盆也是非常的多,相信有不少朋友和我一样,虽然厨房的面积不大,但总是控制不住自己剁手的想法,总会买各种锅具回来,但是这些锅具太多了,真正能常用的没几个,这个时候该怎么收纳这些锅具就成了一大头疼的问题。


而这款下水槽伸缩置物架就很不错,多层的设计,能随着我们的需要调节高度和长度,使用起来特别方便,而且还能收纳不少的厨房用具,特别是一些不常用的物品放在下面,能节省很多空间。
厨房下水槽置物架可伸缩橱柜分层锅架下水道柜子收纳架用品大全
不锈钢的材质,防腐性能非常不错,而且还坚实耐用,采用食品级PP材质,使用更放心,承重能力也很强大,摆满各种厨具都无压力,免工具安装,徒手更便捷,价格也很实惠,所以有需要的朋友就不要错过了。


俗语有云:金厨银卫。厨房事关一日三餐,其设计是否合理,极大地影响着我们居家生活的幸福感。然而很多人只注重一些大的方面却忽视了小细节,最终导致使用时各种不顺手。今天我们就说说厨房装修那些事儿,希望大家在厨房改造时可以避开这些坑。
一、厨房吊柜留空隙

在厨房做吊柜是司空见惯的事情,有了这些吊柜可以放很多东西,做饭时的各种调料包、不常用的餐具以及各种烹饪小家电。可是很多家庭在安装吊柜时都忽视了吊柜与天花板间的空隙。因为没有做封板,这个不大不小的空间成为了灰尘、油渍的藏身之地,也变成了“小强”的安乐窝。

二、吊柜下面没装灯带

有人认为厨房有个顶灯就足够了,就不想费事在吊柜底下装灯带,少了这一步,在阴天下雨时,厨房的光线不好,再加上做饭时的油烟,让厨房的能见度很低,看不清锅内食材的变化。
三、所有的吊柜都装上了门
有人认为把吊柜全部安装上门,可以挡住乱糟糟的瓶瓶罐罐,可是所有的吊柜都装上门,那些常用的调料和餐具拿取时就很不方便,正在做火爆腰花,忙乱中却不知蚝油放在哪里了,这种事情是不是你也经常遇到?所以厨房吊柜要有一小部分做成可视的,甚至不装吊柜门,这样常用的东西就可以一目了然,拿取自如了。
四、吊柜选用木头做原料

有的人认为木质吊柜朴实大方,但其实它非常不适合在厨房出现。因为厨房可以算是家里的“重灾区”,水气大、油烟重,没过多长时间,因为水汽的依附,木头就会出现长菌的情况,而且长期油烟浸渍,木头特别容易腐烂坏掉。
五、为了美观台面选择漂亮的花岗岩
很多人认为厨房要干净大气,所以选择有质感的花岗岩做台面,却不知道这个花岗岩是有辐射的。我们的厨房一般面积不算大,做饭时为了避免油烟,经常关上厨房门,这样长期下去对身体非常不好。所以,我们在选择台面时应该选择有一定防水效果、结实轻便的台面,最好不用花岗岩。
六、为了美观整齐划一
很多人认为:厨房的地方相对面积小,为了简洁要把洗菜台和炒菜苔做成一样高,这样看上去整齐划一,不杂乱。可是,我们却忽略了炒菜和洗菜,我们手臂的高度是不一样的。事实上,最好洗菜台高出炒菜台15-20公分,这样就符合人体工程学,做茶洗菜一下子就轻松自如很多。
七、水槽安装台下盆

现在很多厨房为了美观实用都选择安装台下盆,这样一眼望去整洁干净,但使用一段时间就会发现,原来台下盆在冲洗蔬菜或是碗筷时,水珠会积留在台面与水槽之间,时间一长就会出现霉点。所以在装上台下盆后要玻璃胶填充连接缝,这样使用时才不会积存水液。
八、厨房水龙头不是过高就是过低

为了美观装个欧式风格的高弯水龙头,好看了但用起来却会水滴四溅。而低矮的水龙头在清洗奶锅、炒锅这尖体积大使用时又不顺手。最好的方法是安装抽拉式水龙头,这样使用起来就没有后顾之忧啦。
九、厨房最大的烦恼莫过于油烟的清理
因为我们的饮食习惯,每天都要炒菜,所以厨房油烟就是不可避免的。好看的瓷砖上用不了几天就会附着上黄腻腻的油渍,每次清理起来费时费力。

琦哥向大家推荐一款实用便宜的防油烟贴纸,它的成本很低,花上几元钱,选择自己喜欢的图案,贴在厨房燃气灶附近的墙面上,每次做完饭只要轻轻擦拭就可以了。这种防油烟贴还防潮防高温,既安全又美观。如果想让厨房整体风格协调,可以把台面、墙面橱柜表面都贴上。
十、闲置空间无法利用

本来装修时想得好好地,把水池下面用橱柜包起来又美观还可以贮存物品。可是真正使用时才发现,橱柜内的管道凭空占据了很大的空间,利用率很低。
现在有了可伸缩调整置物架,根据橱柜的尺寸伸缩自如,然后就可以很方便地利用空间放些常用的清洁用品、甚至锅具。除此以外,还有不同规格的夹缝小推车可以把厨房中空闲的缝隙利用上,不用时推进去,做饭时拉出来,收取方便。
十一、各种清洁用品不买没得用,买了又后悔

现在厨房清洁用品真的是太多了,清洁布、钢丝球、去污布等等,买时以为可以万能清洁,可是到家才发现清洁布根本无法对付质地很硬的锅,甚至连抽油烟机都擦不干净。换上铜线球,虽然可以去除锅具上的污垢,但锅具表面也被划出一道道划痕,非常不美观,时间长了还会长锈。
经过很多清洁用品的尝试,琦哥负责任地告诉各位朋友,一款超级好用的清洁神器——厨房去油纸巾,它就像平常抽纸巾一样,有一个塑料盖,不用时盖住,里面的湿纸巾就可以长期锁住水分。


生活精致的女人,她们懂得如何收拾自己,干净整洁才是最基本要求,对于生活,她们都能严格自律,规划自己的人生,让小日子过得风声水起。生活过得精不精致,其实厨房已经给了我们答案。厨房里有这3样东西的女人,一般生活过得很精致,瞧瞧你有几样?

1、地板清洁片
生活精致的女人,更加注重于细节!厨房的地板看似不起眼,但是若是脏兮兮、油腻腻的,总是会让人感觉很不卫生,走起路来非常地难受。然而我们平时经常做饭,油渍难免会喷溅到地板上,时间一长,就会形成顽固的油垢,任凭我们怎么擦都擦不掉。

聪明的女人不会直接用清水来清洗地板,她们懂得加入多效地板清洁片,超强的清洁能力,使得我们清洁更加地简单,擦一遍,地板干干净净的,同时还能起到杀菌除螨的效果,地板不容易发霉,地板看起来漂漂亮亮的。


建议大家可以使用厨房专用湿纸巾,抽取一张,哪有油渍的话,一擦一抹,内置的超强去油污因子就会快速分解油垢和油渍,再难清洗的油渍一下就干净了,而且还不需要二次清洁,非常省心。


01厨房缝隙收纳架
不管厨房装修得再完美,总是会留下一些夹缝空间,并且很难利用。既浪费了空间,长期闲置之下,夹缝缝隙里也容易藏污纳垢。

与其让夹缝长期吃灰,大家不如在厨房备上一个「缝隙收纳架」,小巧的推拉式设计,刚好可以放入到夹缝之中。

同时厨房里的调味品、酱料、饮料等都可以放置在收纳架上,再加上底部的轮滑设计,方便推拉拿取。

一个小小的缝隙收纳架,就能够让原本“鸡肋”的缝隙空间,得到完美的利用。

02水龙头延长花洒
厨房之中最容易被忽略的装修之地,就是水槽上的水龙头。水槽再好看,如果水龙头没选好,就用水时,就容易喷溅得到处都是。
若是水龙头长度不够的话,平常洗菜洗碗也会显得不方便。

若是你也有这个困扰的话,建议大家可以安装一个「水龙头延长花洒」,它能够自由伸缩,还拥有防溅和起泡功能,不会让水流喷溅。


同时360°可旋转的设计,还可以拉伸水龙头的长度,清洗一整个水槽都没有问题。原本不好用的水龙头,接上延长花洒之后,就秒变为伸缩式水龙头。

03水槽收纳置物架
厨房如果收纳没设计好的话,你就会发现厨房的储物空间不足。收纳空间不足,厨房就会显得很杂乱。

若是你家厨房也空间不足的话,建议可以利用一下水槽上方的空间,放置一个「水槽收纳置物架」,能够将碗筷、砧板、锅铲、锅勺等用品,都收纳在架子上。

看似简单的置物架,却能够足足提升厨房一倍的空间利用率,看着原本随意乱放的碗筷碟盘,都被收拾得整整齐齐,真的心情都变得很美好。

不过需要注意的是,需要选择底架和材质牢固的款式,不然水槽收纳置物架很容易会倒塌,碗筷碟盘都摔碎的话,便得不尝失了。

04旋转调料收纳盘
基本上大多数家庭的厨房, 在烹饪时,都会把各种瓶瓶罐罐的调料,放在厨房操作台上,容易积灰不说,而且也让厨房变得杂乱。

作为重油重污的厨房,这样放置调料瓶,真的很容易在瓶身附着一层油污。

建议大家不要把调料瓶放在台面上,可以入手一个「旋转调料收纳盘」,放置在柜子里,再将常用的调味品都放在里面,旋转拿取,真的超级省事。



05L型的收纳挂杆
厨房里最不好收纳的东西,就是砧板和锅盖了,以前使用过一些大的收纳架,但是真的太占据地方,让原本狭窄的厨房都变得更狭窄了。

而且拿取真的不方便,因此我家的砧板和锅盖都是随意立着摆放。

后来发现闺蜜家都是用「L型的收纳挂杆」,它原本其实是拿来挂一次性厨房纸,的确也很好用。
但是黏贴在墙壁上,就成了一个锅盖、砧板收纳杆,轻便又小巧,还不占据态度ode地方,真的特别实用。


既可以拿来收纳一次性厨房纸,也能拿来挂置锅盖、砧板,真的是一物多用,也解决了许多的厨房收纳问题。


06厨房智能感应灯
厨房的灯光如果布置不恰当的话,就容易光线不足,尤其是晚上做饭的时候,总觉得切菜都看不见,很容易切到手。

而且看不清锅里菜肴的烹饪状况,也容易糊锅,真的灯光不足,连烹饪做饭都变得困难了许多。

建议大家可以像我家一样使用「智能感应灯」,它是充电式的款式,可拆卸式的电池,充一次电,能用上一个月。


而且是人体感应式的设计,贴一个在厨房吊柜底部,只要人站在旁边,感应灯就会常亮,真的很方便。


⑵清洁问题。冰箱放厨房会有被油烟侵蚀的现象,若不坚持定期清理,时间久了易产生清理较困难的现象,污渍斑斑,影响美观。

⑶摆放位置。在我看来冰箱在厨房摆放位置应该距离天然气、灶台较远,以避免有煤气泄漏时产生火花发生爆炸和火灾。

2.冰箱更适合放厨房的情况
⑴厨房面积允许。厨房面积较大,不会因为冰箱的放置而影响橱柜及厨房活动的“方便度”,并橱柜拥有所需功能性时(比如所需的收纳空间),我认为把冰箱放到厨房还是更为适合的,常做饭的家庭使用更方便,只是需注意它的摆放位置,在客观条件允许的情况下尽量与灶台、太燃气保持距离。

⑵厨房不常用。如果厨房使用率较低,对橱柜的面积也无甚要求,那我认为无论厨房面积较大亦或较小冰箱都是更适合放在厨房的,因为这样不用“缩减”家中其它空间的可使用面积,也不用因为冰箱的“颜值”较低而影响家中其它空间的装修效果。

3.不建议冰箱放厨房的情况
⑴餐厅和厨房面积都较小。在多数家庭中,当厨房的面积较小不适宜摆放冰箱时,餐厅会是“第二”选择,但若是厨房和餐厅面积同样较小时,我是不建议“保住”餐厅而“牺牲”厨房的,因为在我看来厨房橱柜一旦“折损”,影响到正常功能的使用(比如切菜区面积较小,操作“严重”不便),想要设置“可替代性”的使用功能可行性较低,不易实现;然而如果“牺牲”餐厅,我认为是可以通过选择适合的餐桌款式,或“转移”餐厅的使用区域进行一定程度上的“弥补”的,比如面积较小的餐厅,放置冰箱之后正常“展开式”的四人餐桌摆放不下,还可以选择折叠餐桌,平常“收起”,降低对区域的面积需求,使用时打开即能满足需求;亦或将餐厅与客厅“合二为一”,把客厅茶几当餐桌使用,也能达到一定的使用需求……


⑶想要“大橱柜”。冰箱会“减小”橱柜的设置面积是毋庸置疑的,如果就想要有较大面积的橱柜,喜欢使用起来更顺手、更方便,我认为既然喜欢就不用考虑那么多,将冰箱移出厨房就好了。

4.冰箱除了厨房还可以放在哪些区域
我认为家庭空间中,除了厨房较适合放置冰箱,面积允许的情况下,餐厅,西厨,如设有吧台等需要使用到冰箱的休闲区等也是较适合的区域,但还是要结合家庭成员使用习惯、厨房使用率、冰箱的主要使用功能(比如放置酒水、零食,还是放置做饭会使用到的物品等)、家中功能区存在情况、功能区面积、家庭成员喜好等为自己家选择更适合的区域。



家里有条件装个专门的消毒柜更好,如果不允许,用这种小巧不占地的筷子杀菌烘干机也不错。
为什么它真的有用?主要是杀菌原理决定的,它是通过紫外线+高温烘干杀菌消毒的,而且筷子是一直放在里面的,从杀菌方式到接触时间,都满足了杀菌消毒的要求。

而且,除了筷子,日常的勺子、刀具也能放进去,既解决了收纳问题,还给厨房增加了科技感,幸福感满满。

2、集成灶置物台
相比传统油烟机,集成灶的优势还是很明显的,净烟率高、省空间、带有蒸烤箱等,因此很受大众青睐,近几年也特别火。
但给家里选集成灶,一定要带置物台的这种,能代替一部分置物架的作用,增加厨房的收纳空间。

为什么这么说呢,这是朋友家的集成灶,当时没选带置物台的,后来还是自己装了,多此一举。

有置物台好处多多,厨房的调料盒或者其他小物件可以放在上面,做饭时拿取方便。



一般来说,水槽的安装方式有台上盆、台中盆和台下盆。很多家庭以最前者的安装方式为主,如此一来至少滋生了两个问题,一是台盆和操作台的接缝处,需要用到玻璃胶填充,后期溅水容易发霉变黑;二是加工食材以及清洗食材时,所产生的水渍和垃圾,不可以直接扫进去。

而台下盆和台中盆就巧妙地解决了这个问题。不过后两者的安装成本比较高,大概多个200块左右,但用起来还是非常值得的。



所以这个时候有三种办法可以解决,一是换成功能丰富的可抽拉龙头,不仅拥有360度万向旋转的功能,辅助清洗水槽和台面周边的卫生都可以,而且出水方式有更为节水的花洒模式,和出水更加细腻柔和的气泡水,缺点在于这种安装成本相对较高;

二是直接接入一个防溅头,虽然成本低,但看着突兀不够美观的同时,里面的原件和用材容易污染水源;


进门玄关左侧打造到顶墙柜收纳增加储物,连着玄关做整面的柜子充当餐边柜,右侧是一间次卧。

改造亮点:

打掉原厨房的墙体做成开放式厨房,在厨房和餐厅之间设计岛台储放电器,白色的橱柜设计和墙砖看起来通透清爽,黑色的餐桌椅凳与白色形成经典的搭配,日常还可以在这办公学习,光线通透舒适。

厨房面积不大所以把双开门的冰箱移到餐厅区域,嵌入墙柜整洁不突兀,墙柜在这里做的是隐形门无把手设计看起来清爽一些。

餐厅后面这里开发商赠送了一个小阳台,利用这个小阳台设计成洗衣房十分实用,而且两面玻璃窗提供了足够的采光通风。


从餐厅这一侧看去玄关的这面墙,到顶墙柜增加了大量的储物空间,留出竖排置物架展示一些纪念品或摆件儿。

客厅无主灯加上四面落地的白墙尤为纯净,阳台纳入客厅增加客厅的活动面积,电视背景墙面做整面墙柜一点不会显得突兀,反而在增加收纳量的同时也更整洁。

阳台因为门框不可以拆掉所以就保留了这部分,特别是拍照的时候特别有框架感,白色防晒窗帘看起来清新又唯美。

灰色的双人座沙发角落放上绿植加上一副随笔画,色彩简约又舒适,客厅桌这里也选用小巧型的方便移动。

卫生间干湿分离,洗漱台外置增加日常使用频率,淋浴间做玻璃门隔断减少水渍和清理卫生的难度,卫生间地面和墙面选用的这种水磨石非常耐看。

主卧沿用客厅的风格四面落地的白墙加无主灯设计,床头两端设计壁灯,卧室空间不大放下一张双人床加上两个床头柜基本没有其它空间,侧边沿墙一组墙柜收纳储物。


房子的原始状态:装修老旧,风格过时,实用性差!

一进门左边有个白色柜子,三段式+开放式设计,有藏有露,能收纳又能展示,以便更好地满足业主的不同需求。

入户门另一侧紧挨着卫生间门,回家换好鞋子就能进入卫生间先进行洗漱一番,这样比较干净卫生。

再旁边就是客厅了,虽然空间不大,但该有的家具一样不少,一张细脚沙发显得空间更有轻盈感,大理石茶几放置茶杯遥控器和杂志等,角落处还有一盆绿植。

沙发对面是壁挂电视,下面悬挂一块隔板,不占空间的同时也能做些简单的收纳,让家里看起来更整洁。

客厅和餐厅一体式设计,家里一下子变得更加宽敞,餐桌靠近窗边,光线和通风都很不错,靠墙处还有餐边柜,而随处可见的绿植也让业主用餐时心情愉悦。

原本只有一层,业主却利用层高的优势,搭建了一个夹层,为家里多赚了一个空间,单层公寓变跃层。

厨房的改动应该是家里最大的亮点了,原本室内的厨房没有窗户,采光差,业主直接将橱柜搬到阳台,现在采光和通风都很好,业主很满意。另外角落处腾出空间放置冰箱和洗衣机,顶部照样能晾晒衣服,两大功能一点也不耽误。

超大的橱柜台面分出一半进行了抬高设计,一边能满足业主日常的烹饪需求,另一边可以设计沥水槽,以及种些绿植和蔬菜,另外外开式窗户也能防止雨水淋进厨房里。


一般情况下,我们的厨房都比较小,而且还堆满了各种瓶瓶罐罐和一些瓜果蔬菜这些食材,想要把它们找到合适的地方来存放,是一件比较困难的事情,随意摆放在桌面上,看上去很影响美观,而且每次拿取的时候也不怎么方便,这对于我们的居家生活来说,还是有一定影响的,因此,我们更要学习长沙这户人家厨房的布置方法,美观实用还不贵。

1、防油贴纸:每次烹饪总会弄得油星四溅,最终厨房的墙面、台面、灶台等空间都会被沾满油渍,清洁起来特别麻烦,如果长时间没有清理干净,这些油渍就会滋生细菌影响我们的身体健康,而且看上去脏兮兮的、油腻腻的很影响我们的烹饪体验,整个居家环境也会被破坏。

这个时候,我们如果能学湖南这户人家厨房,入手这款防油贴纸就能解决以上的各种问题,把它粘贴在厨房的墙面、台面等地方,就能起到很好的防水防油的作用,哪怕是用脏了,不用洗洁精轻轻擦拭就能干净如新,就算我们不想花时间去清洁也没关系,用久了之后可以定期更换,这样会更加省事。

当然,我们也不要觉得会浪费,因为这款防油贴纸的价格很实惠,怎么用都不会让人觉得心疼,更重要的是能够根据我们的需要进行自由裁剪,图案有很多种,我们还可以根据自己的喜好做出选择,贴好后,整个厨房的颜值也会提升不少,看上去视觉效果会更棒。

2、鱼鳞布:抹布是家家户户都有的居家用品,但是抹布用起来真的不怎么方便,每次清洁完,抹布和手上总有油腻感,怎么清洗都没办法清洗干净,最终我们可能会很频繁地更换抹布,整体的消费还是比较大的,但是如果我们不丢掉抹布,上面的油渍、污渍就会滋生各种细菌,对于我们的居家生活来说,有很大的影响。

所以我们可以学习湖南这户人家厨房的做法,把家里的脏抹布都丢掉,改用这款鱼鳞布来清洁,这是一款可以擦拭玻璃、镜面、不锈钢的家务清洁布,超细纤维材质、鱼鳞格设计,能增加摩擦力,去污能力强、哪怕不用或者少用洗洁精也能把物品给清洗干净。

再加上鱼鳞布的吸水性好、擦拭不留水痕、不掉毛,不管什么东西脏了,轻轻擦拭就能变得蹭亮如新。
日本鱼鳞格抹布吸水不易掉毛不易留痕大号加厚厨房神器用品不易留痕清洁布纤雅洁
鱼鳞布的颜色有很多,我们可以多买一点鱼鳞布回来,在不同的场合也能够不同的颜色鱼鳞布,这样能避免交叉感染,使用起来也会更加的洁净和健康,厨房生活也会变得更完美。

3、五谷杂粮收纳盒:厨房是一个比较潮湿的地方,五谷杂粮和干货类的食物的存放对于不少朋友来说都是一大难题,如果我们存放的不用心,这些食物很容易出现发霉、变质的情况,这样不仅浪费了食物,而且还会滋生细菌危害我们的身体健康,用塑料袋装的五谷杂粮每次找寻也不方便,如果塑料袋破了,收拾起来也比较麻烦,这些情况都很影响我们的居家心情。

这个时候我们就可以学习湖南这户人家厨房,入手这款五谷杂粮收纳盒来帮忙,它的存在能够解决各种五谷杂粮和干货类的食物不好存放的问题,密封性特别强,能够让食物更加保鲜,除此之外透明可视的设计,能够让我们在使用和寻找的过程中变得更加方便,同时还能减少各种塑料袋的存在,整个厨房也会变得更加干净整洁。

五谷杂粮收纳盒的材质是达到了食品级的,安全无毒,能够让我们放心使用,盖子上面还有加粗的硅胶圈,盖子上面还带有锁扣,能够排出多余的气体,从而起到防虫防尘的作用。

重油污清洁剂
厨房使用时间长了就会发现,吸油烟机、灶台、厨具、橱柜、吊顶等厨房各个空间都会沾染上油污,特别是吸油烟机,油污会堵塞油网,侵蚀吸油烟机的配件,影响吸油烟机的吸力以及使用寿命。

面对厨房的重油污,普通的清洁方式费事费力,尤其是在忙碌了一天之后,吃完饭只想找个地方躺着不动。这款重油污清洁剂只需要一喷一擦就能完美的清洁油污,并且含有柠檬因子,清洁过程中没有刺鼻的味道,还会留下清新的柠檬香味。

不仅如此,这款重油污清洁剂会自动分解油污,你只需要简单地一喷一擦,厨房立马变得焕然一新!并且采用的是温和配方,还不会腐蚀厨具,让厨具的使用寿命更长。
不锈钢清洁膏
厨房的锅具在使用一段时间后,会出现变黑发黄的情况,特别是在燃气灶上使用过后的锅具,底部通常会有一层漆黑的污垢,用传统的钢丝球来清洁,费事费力不说,还会把手上、水槽上到处都沾染上。

自从家里买了这款不锈钢清洁膏后,我就再也没有被这个问题困扰了。清洁过程十分简单,用百洁布沾适量的膏体,反复擦拭,直至光洁如新,最后用清水清洁干净就可以了。


值得一提的是,这款清洁膏不仅适用于锅具,还能用于清除水垢、除锈渍、去油污、去污垢,一膏多用。
水槽过滤网
常在家里做饭的朋友,肯定遇到过这样的问题,做完饭后,水槽里经常会出现各种食物的残渣,有时候残渣太多,还会堵塞排水,还要用手去抠才能把水放下去,这场面,想想都是够够的了!

最重要的是,水槽的原有的金属滤网的孔洞比较大,还是会有一些垃圾碎屑会被带到下水道中,时间长了管道就会被堵塞,自己不会弄,只能花钱找人来疏通,费钱费神。自从买了这款防堵过滤网后,问题都解决了。

用法很简单,你只需要将其套在水槽上面即可,并且网眼特别密集,细小的食物残渣都可以过滤,从此就不用担心出现堵塞情况啦!而且才几分钱一个,丢掉也不会觉得可惜,买一次300个,能用很长的时间。
可折叠壁挂式垃圾桶
在厨房做饭的时候,特别是备菜时,放到地上的垃圾桶感觉真的不方便,不弯腰吧,怕垃圾调到地上,最后还要清扫。弯腰吧,时间长了真的受不了,做个饭腰酸背痛的。这款可折叠壁挂式垃圾桶,可以直接挂到橱柜门板上,再也不用弯腰备菜了。

并且这款垃圾箱还是可以折叠的,不用的时候收起来并不会占用太多的空间,不会妨碍到你,用的时候轻轻一摁,就可以轻松使用了。

这款垃圾桶底部还有独立的垃圾袋口设计,顺畅抽拉,省心不费力。

两种颜色可以供大家选择,把两种颜色的垃圾桶分开使用,一个装干垃圾,一个装湿垃圾,简单分类,让室内保持洁净。

最重要的是,价格也不是很贵,趁着618活动,赶紧把它带回家吧!
除霉啫喱
梅雨季节来临,家住南方的朋友一定有这样的体验,那就是家里很多东西都发霉了!!!洗衣机胶圈、冰箱密封胶条,水槽、马桶等用过玻璃胶的地方以及瓷砖缝隙这些地方都会发霉,并且发霉的地方很难清理。

现在很多人都在使用一款除霉啫喱,它是日本生产的清洁产品,主要成分为次氯酸钠和氢氧化钠,在清洁霉斑的过程中,还能达到抑制细菌的效果,真的非常好用。













