1住过复式房子的感受、空间大 跃层式住宅给人的第一视觉体验就是居住空间足够宽敞,没有了逼仄空间的束缚,整个人心情都会舒畅不少,在这样的居住环境下,你不用再担心家...
住过跃层房子的感受如何? 1、空间大 跃层式住宅给人的第一视觉体验就是居住空间足够宽敞,没有了逼仄空间的束缚,整个人心情都会舒畅不少,在这样的居住环境下,你不用再...

这一期案例分享中沐沐要分享的是一套底层复式,一共有四层,每一层的设计都让人很“惊艳”,它以东方雅居为主题,通过内敛和简约打造的一个宁静雅致的住宅。
一楼
一楼空间主要是生活功能区有客厅、餐厅和厨房,并且预留了一个老人房;客餐厅是在一个横厅内,两者都临窗而设,超大面积的落地窗将室外的风景带入室内,享受着充满仪式感的生活。
一楼户型图客厅的布局并没有如寻常般以电视为中心,去电视化的设计只保留了沙发,沙发背景墙的设计是客餐厅的一个视觉焦点;

以充满艺术感的中国画作为主背景的装饰,不对称的木质格栅增加线条感同时也作为与楼梯的隔断;木质与布艺结合的沙发,带着柔和也带着雅致,藤编元素的融入增添了几分复古的气息。
沙发背景
客厅细节从客厅到餐厅,视线毫无阻隔,一体式的吊顶和通铺的地砖拉伸了空间感,要说两个空间的界线那大概就是客厅的地毯边界吧;餐厅里的木质元素与客厅保持一致,定制的西厨餐边柜中融入了大理石,原本温柔清雅的氛围多了几分大气;
客餐厅餐桌椅也都是木质,餐椅上的藤编元素与沙发相呼应;精致的器具、禅意的山水小景有别于繁华之乐,更在乎的是赏心悦目。


步入老人房,这个房间里有着充足的采光,以中性低饱和度的色彩来营造一个适合睡眠的环境;床头带着线条的硬包搭配一幅中式画,木质结构的床搭配细腻的床品,灰色的窗帘又增加了高级感。


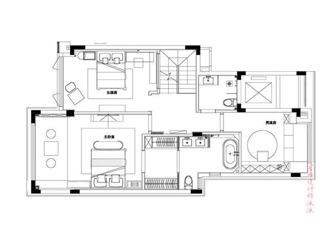
二楼
沿着楼梯上到二楼,这里主要是一家四口的休息区,有主卧、女孩房和男孩房;整体的搭配设计既延续着一楼的雅致也有各自独立的特点。

主卧空间比较宽敞,把阳台地面抬高改造成了一个室内的茶室,闲来无事时两人或是闲谈或是一杯淡茶一起享受这种惬意;

主卧的床头背景墙很是大气,宏伟的山水画带着山川湖海的磅礴表达了居住者宽大的胸襟,藤编元素在床头出现也是对一楼的回应;


床尾的电视柜造型偏中式,带着几分清朝的雅韵,枯景与挂画形成对比。

移步女孩房,女孩子的房间里在中式氛围的基础上多了些许的柔和浪漫;灰蓝色的背景上以花鸟画为主题再加上弧形的床头靠背凸显女孩子的恬静,温馨的暖咖色、柔美的裸粉色还有清新的浅蓝色,在汉服的点缀下,给女孩子营造了一个充满少女心和雅致情调的居室。



男孩房的设计与女孩房不同,主要是为了小孩子的玩耍把空间尽可能的留空,靠窗定制的榻榻米和收纳柜满足日常的休息和收纳,背景墙上的“小王子”也与现实的小王子相呼应。


负一楼
住宅更多的是追求功能性与生活气息,所以负一楼被打造成了一个亲子活动室,有儿童的活动玩耍区还有陶艺手工区;在整体的配色上以活泼俏皮为主,点缀的灯带营造出温馨的氛围。





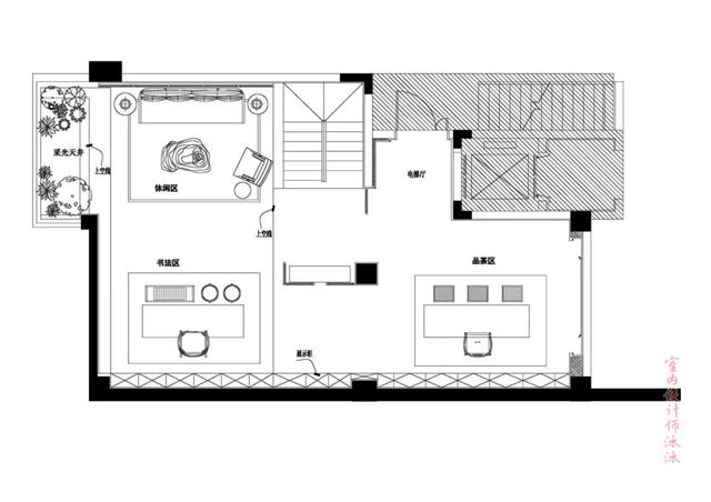
负二楼
闲者生活,自在有道;负二楼是给居住者打造的一个休闲时光的场景;或是品茗赏画、或是书法创作,把诗意融入到生活的点滴中。






向内而敛,其述于心
Moving Forward to Heart and to tell
探索事物于不同角度的发散认知,以相对述平化的方式
来阐述其内在诸多的复杂可能性,
挖掘更多不同的生活方式探讨和对人性的再思考,
让空间更具可考究及情感共鸣的建立......




包括会客区和就餐区的南向定位,业主也有向我们阐述虚拟的日常情景,并希望可以把这些愿景纳入到空间的考量当中,也是综合了外部环境的视野考虑,尽量减少公区的阻隔动线,让通风和采光条件可以实现最优。


关于门厅及烹饪区的处理,可能更多的还是围绕日常的便捷可操作性为主,居住者本身在这样的分区内可以被记录更多的日常,借由柜体的延伸及天花连贯性,引导行为走动到过道及就餐区。


地台的转折考虑,也为动线提供了很好的指示作用,让视觉可以随形式而变换不同的情景模拟,由就餐区看向公区的视野无阻碍性,多以低位物件为主导,确保视线的舒适性,来提高居宅的品质诉求。


门厅及烹饪区的地材分界,借此来强化材质的延伸及空间的穿透性,拉伸视觉的扩增区域,再借助面体的转换概念,让空间呈现逐渐递减的视觉引导性,同时也区隔了左右开间的日常交互方式情景。


也是考虑形体的控制程度,故在立面及天花的处理上更多的借助了原有的结构性条件,诸如梁位,设备空间的色度区块,来让天花的层次变化可以过渡的更为丰富。


再表示,室内除满足正常的收纳条件以外,在空间的处理阶段,务必克制及有结合的来考量空间对外所要表达的呈现,尽量来扩增内开间的尺度舒适度。
相对于2F的私密区域,业主表示内开间尺度偏窄,除马桶区域外的隔间是否可以实现开放,包括衣帽区的区域也是要具备。


木地板延伸至餐桌旁的操作区,形成了半包围式的心理暗示,结合转折柜体的L型延伸,让视觉也起到了丰富的转折体验,拉近了相邻区间的开间及心理尺度。


这是一个典型的跃层空间,中间镂空的部分我们可以考虑直接保留,做一个有6米高度的大面积背景墙。如果考虑实际居住面积更多的话,也可以浇筑楼板,做一个传统上下层空间。
经过和业主的充分沟通,我们将空间具体划分如下,可以从平面布置图中清晰的看出。


对于有也希望跃层装出设计感的小伙伴,以下几点是可以具体参考的。
跃层空间往往第一层用于公共空间,一般功能布局为客厅、餐厅、厨房、公卫等。二层空间往往为私密性空间,功能布局为卧室、书房、衣帽间等。跃层想要设计感,可以先从大厨房入手。案例中的厨房是值得大家借鉴的,关闭起来是封闭式厨房,打开灰色玻璃移门,就是开放式厨房。跃层客厅空间如果进深过大,可以和案例中一样,考虑在沙发后面设计个茶桌空间,会客、品茶、观影都不耽误,而且客厅格局也会更大气。隐形门是很好的一个装饰亮点,用来隐藏不想直接被展示出来的空间。现在五金件的质量也更好,家中设计隐形门也是完全没有问题的。规划完毕后,我们一起来看下实拍效果吧。
客厅空间

现浇浇筑完成后,客厅空间就是一个非常大的空间了。我们整体设计为现代轻奢风格,采用了无主灯的设计方式。颜色以灰色、白色为主,营造轻奢淡雅的空间氛围。

线条与线条的呼应,是最能展现空间一致性的手法。小伙伴们可以像我们案例中的一样,采用木格栅、线性轨道灯的搭配。

客厅的家私也是精选的,茶几被格栅线条包裹着,正好和入户门的木格栅相呼应。

电视背景墙是目前最流行的岩板+格栅+光影的背景墙。利用木饰面做地台,木格栅打底,并留出灯带空间,最后将岩板悬空安装,造型完美。如果想要知道具体怎么做的小伙伴,也可以评论区留言告诉小弥哦。

茶几上的小饰品是设计师自己做的,是不是很心灵手巧。

暴力熊Kaws,是比较容易营造有趣氛围的雕塑摆件。特别推荐给大家,家中无论是现代风格、还是轻奢风格,都是可以放上一件,增加空间趣味的。

这样大的雕塑,也特别适合跃层的空间。

这是沙发后的茶桌,品茶、聊天,让空间充满着中式文化的味道。

虽然跳楼和复式楼受到了业主的欢迎和喜爱,但仍然有很多业主对跳楼和复式楼的愚蠢区分感到困惑。他们知道价格相对便宜,格局差不多,不知道哪个好。现在边肖会向你介绍...
每日简讯每天会随机更新五个项目的最新动态,希望能给大家提供参考。另外,在微信官方账号对话框中回复楼名可以获得更详细的信息。 1.万科金隅滨水区 该项目位于北...
跳跃式、复式、LOFT有什么区别? 在买房的过程中,在介绍户型的时候,经常能听到“跳”、“复式”、“LOFT”这几个词,有点像,但都是三种不同类型的户型 弹簧层 复式公寓...
从多层、高层到别墅,再到现在流行的复式,人们对房子的定义不再单单是“睡觉的地方”,而是更加向往和追求高端品质的生活。由于许多城市住宅用地紧张,为了更好地利用土...
随着时下人们生活水平的提高,很多人已经买了房子,而房地产开发商已经推出了小悦这样的公寓,这样的房子的价格还是很合理的,所以购买的人是 越来越多。 然后让我向您介...
买房你喜欢中规中矩的标准户型,还是有更多空间可能的新式户型?随着80后成为购房主力,跃层、LOFT等新式住宅纷纷成为追求时尚的年轻人的首选。但这些户型常会傻傻分...











