Jason Wu(吴季刚)是现代美式风格的代表,作为美籍华裔设计师,吴季刚的设计既有美式特有的运动风,又符合全球化审美习惯,华美感性而不被潮流左右。他务实而不...
113是什么意思相关介绍,113平米的三居室该如何装修出令人满意的效果呢?下面这套案例来自于雍祥府,采用了全包的装修方式,装修预算是12万元,美式风格的装修让这套113平...
120平轻钢别墅哪个品牌好相关介绍,今天,建筑迷们推荐这座两层120坪的轻钢结构别墅设计图。本来这个设计图是硬木结构,但完全可以作为轻钢结构的自助参考。(大卫亚设...
120平轻钢别墅哪个品牌好相关介绍,钢铁别墅特点:1。抗震8级,抗风13级。 2.得房率比传统多40%。3.集成化的住宅,2个月200平方可建好直接入住,省时省力。4.环保节能,不会...
120平轻钢别墅哪个品牌好相关介绍,钢铁别墅特点:1。抗震8级,抗风13级。 2.得房率比传统多40%。3.集成化的住宅,2个月200平方可建好直接入住,省时省力。4.环保节能,不会...

设计简介:
装修风格:现代美式田园风格
实际面积:190平米
空间格局:四房两厅两卫一厨
设计师:茱莉娅设计师
项目位置:黑龙江省哈尔滨市
装修造价:预算费用52.52W
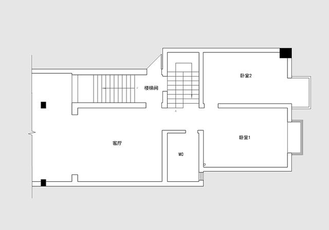
01原始户型图

房子的实际面积是190个平方(数据是不包含公摊面积,除开了公摊面积之后的外框面积,一般实际面积要比公摊面积少,套内面积多,因为它包含了墙体的面积)。房子整体是南北通透的,拥有四个大窗户的阳台空间,给了室内充足的采光效果。
02平面布置图

根据和业主的多次沟通之后,在结合户型的一些特点,做了一些微调设计:
1、玄关做了扩大的处理,在入户门的正对面做一组隔断式的鞋柜,扩大了玄关的面积。
2、厨房做开放式的,利用门洞的位置做一个岛台出来,正好吃早餐很方便。
3、有两个次卧室都向外面进行了扩展,做了一个小套房出来。
4、主卧室空间也做了很大的变化,做了一个很舒适的套间出来,尤其主卫做得很舒服。
03玄关



玄关没有形成一个空间,只是规划出来一个区域,幸好有个凹槽空间,可以做鞋柜和换鞋凳。在玄关的正对面还做了一组隔断式的鞋柜,这样保持了空间的通透效果,玄关从顶面做了两部分的区分,刚好在进玄关鞋柜的门洞位置和进客厅的门洞位置。
04客厅



客厅做了无主灯的设计,看整个空间显得更加的敞亮,里面做见光不见灯的灯带,还做了嵌入射灯的处理,让整个客厅的灯源更加的丰富,也更加的柔和;电视墙贴的文化石,做弧形的造型处理,两边搭配罗马柱造型,让客厅电视墙成了整个房子的亮点特色所在了。沙发背景墙就比较简单,没有任何的造型,就只挂了两幅画,这样这面墙才不会显得寡淡。

这个小小的阳台,虽然不大,确实家里面的主要休闲区域之一了,在这个区域里面摆放一对休闲椅,沙发休闲椅后面有暖气片,因为是在北方,每个家里面都有,都是集中供暖。
05餐厅






设计简介:
装修风格:现代美式风格
实际面积:320㎡
空间格局:五房三厅
设 计 师:夜未央
项目位置:成都东林半岛
装修造价:预算费用80W
01户型图
负一楼原始结构图
一楼原始结构图
二层原始结构图本户型为联排,结构相对周正,无浪费面积,地下一层采光较差,需通过天井将光线引入室内。三层的联排别墅,单层面积很小,其实这样的别墅利用率很低,没有大平层舒适,因为楼盘要浪费很大的面积去,很多地方并不宽敞,也并不通透。
02平面布置图
负一层平面布置图
一层平面布置图
二层平面布置图由于地下一层采光较差,开放式厨房是不二之选,能将采光井的作用发挥到最大;二三楼均为客厅卧室。整体的格局并没有做大的变动,为了体现出一些特色来,奠定好基础(在装修设计过程中,家的平面方案是基础就像建房子打地基一样)。餐厅做了一个圆形出来,在一楼和二楼都分别做了客厅出来,这样会更加舒服一些,这样有了更多接纳客人、会客的地方了。
03负一楼客厅



象牙白护墙板勾勒轮廓,框内浅蓝色墙漆显得清爽,沙发背景大幅壁画将整个空间规整为零,既大气又温馨。客厅的整体构图,还是一个很舒适的感觉,画面感层次分明,凹凸有致。
04餐厅



装修平面图
119㎡的3房2厅2卫,居住人数2大2小,屋主想要美式风格的大厨房,此外,考虑到孩子年幼,需要游戏室。

客厅设计
餐厅到客厅,通过地面材质不同,分区界定空间。同步加入圆角拱门造型,消弭上方横梁的压迫感,让视觉感受更加舒适。三人座沙发,适合坐卧的深度,搭配投影设备,在家也可以享受影院的观感。

客厅和书房没有设计隔断,开放且通透的格局,让空间更显宽敞。通过空间区域的不同布局和沙发作为视觉隔断,柔性划分空间。客厅安装白色椴木百叶窗,光线随时可以根据需求进行调整。


餐厅设计
开放式餐厨设计,餐厅摆放了方便可移动的四人座木质餐桌,原木温润的质朴手感,搭配略带使用痕迹的仿旧地砖,营造更加温润舒适感受。吊灯配置在餐桌上方,简约黑铁外框,搭配烛台般的灯光,为餐厅增添几分精致与浪漫情怀。


厨房设计
厨房以中岛台为轴心,将空间分为烘培、轻食以及明火热炒区。中岛台和橱柜,通过多种瓷砖和柜体的结合,让美式风格特点更加显著。中岛台的设计很实用,可以成为家人感情交流的重要区域,不仅可以一起欢乐用餐,还可以分享料理和烹调的过程。


明火热炒区,布置在靠近生活阳台的区域,方便油烟排散。


家里的柜子基本都是以全屋定制为主,定制的鞋柜偏灰色,其实不是白色。鞋柜直接到顶,半点空间舍不得浪费,预留了位置挂着一幅非常漂亮的装饰画,加上一些小摆件,装饰性很强,让人进来眼前一亮,真心不错。

餐厅布置一张尺寸相对比较长的美式方形餐桌,占用的空间大小位置合适,搭配的餐椅坐着非常舒服。两边都定制了对称式的餐边柜,稍微做了一些拱形的装饰,效果特别美。柜子两边都装满了很多东西,一步步慢慢把家填满,越来越有家的味道。正式入住了,坐在这样的餐厅用餐,都觉得是一种享受,很幸福啊!顶面安装的是黄铜吊灯,加上筒灯和灯带,晚上灯光足够,但是不刺眼。

餐厅右边区域就是厨房了,定制了“L”字型的橱柜,布局形成了“洗、切、炒”的顺序,大小位置合适,使用的时候比较顺手。比较大胆做了开放式的厨房,显得空间宽敞很多,在厨房做饭菜,可以跟在餐厅和客厅的家人一起聊聊天,一点问题都没有。安装的抽油烟机比较靠谱,不会担心以后会出现问题。

这边位置设计了一个小小吧台,可以坐在这里吃早餐或者小酌几杯,都非常方便。墙上安装了挂钩,可以方便挂一些小东西,真心实用。

装修美式风格的效果,给人一种古典有韵味的一种感觉,特别耐脏,沉稳又大气。都是美式风格的家具,也整个空间完美搭配。沙发茶几的款式都还不错,尤其是沙发,坐着很舒服。墙上挂着大小不一的装饰画,特别好看。用餐之后,与家人坐在一起聊聊天,看看电视,这样的温馨画面,估计你见过 了都会眼红的吧。地面选择铺贴仿古地砖,非常耐脏,偏黄色调,给人一种温馨,舒适感。

设计了比较简单的电视墙,贴了蓝色的墙布,然后用木板做边框,非常极简。有了电视墙,给人的感觉不会那么单调的感觉。电视柜两边都布置了边柜,可以适当增加更多的储物空间。一些摆件基本都是网购,价格相对比较便宜,以后需要换的时候,不心疼。

柜子其实很有古典的感觉,非常有韵味。这种柜子非常非常耐脏,效果真心不错。美式风格其实一种都循序着“轻装修重装饰”的设计理念,可以看到硬装部分非常简单,但是装饰性的东西却很多,装饰性非常强。

铜镜非常个性,视觉上非常抢眼。玄关桌上的摆件和植物都是网购的,与整个空间刚好可以很好装饰,显得很有艺术气息。

这是书房,主要是方便男屋主在家的时候可以办公或者看书。墙上的挂画真心漂亮,而与外面的小阳台打通,增加了很多室内面积,显得空间宽敞很多。布局非常合理,看到这样的书房,估计也都眼红了吧!


书法墙上做了小黑板,在这里可以记录日常的计划,觉得还是蛮不错的哈。


儿童房考虑是男孩子,基本以蓝色调为主。一张大床,搭配了太空人图案的床上被套,家里小孩非常喜欢。顶面安装了吊顶,定制的衣柜可以提供蛮不错的储物空间,非常实用。

床头背景墙贴了蓝色的墙布,挂着橙色与黄色的装饰挂画,色彩搭配真心不错。对于家里小孩来说,使用一些比较鲜艳的颜色,还是蛮不错的哈。主卧没有拍来。

每个人都有自己喜欢的装修风格,每一种装修风格给人呈现出来的感觉也是不一样的,中式风格给人一种沉稳大气的感觉,美式风格给人一种休闲轻松的感觉,英式风格给人一种低...


























