XDD这个事嘛,都多久了,还在洗?麻烦某些人,玩过这游戏没?不贵,自己买回家玩一段时间再来说话,别睁着眼开玩笑行不行?讲道理,小叮当一个大主播,一天直播挣多少钱?雇点水军长时...
XDD这个事嘛,都多久了,还在洗?麻烦某些人,玩过这游戏没?不贵,自己买回家玩一段时间再来说话,别睁着眼开玩笑行不行?讲道理,小叮当一个大主播,一天直播挣多少钱?雇点水军长时...
冯德伦,香港影视歌多栖著名艺人,香港最具潜质年青导演,时尚魅力男星。最初以歌手身份进入娱乐圈,后来主演多部经典电影,有着不错的成绩。演而优则导,执导《大佬爱美丽》...
冯德伦,香港影视歌多栖著名艺人,香港最具潜质年青导演,时尚魅力男星。最初以歌手身份进入娱乐圈,后来主演多部经典电影,有着不错的成绩。演而优则导,执导《大佬爱美丽》...
秦晓雯上台之前张云松,这个问题的答案是唯一的,那就是拥有冠军之心的首钢队。然而,秦晓雯上任之后,一番扒皮抽筋的操作,彻底摧毁了刚刚建立的球队文化,最关键的是,秦晓雯...
秦晓雯上台之前张云松,这个问题的答案是唯一的,那就是拥有冠军之心的首钢队。然而,秦晓雯上任之后,一番扒皮抽筋的操作,彻底摧毁了刚刚建立的球队文化,最关键的是,秦晓雯...

新风机之所以具有很好的除甲醛效果,是因为新风机在工作的过程中,持续的将室外空气经过多级过滤后送入室内,这样室内就处于一个微正压状态,然后室内原本含有甲醛等有害物质的空气就会被迫从门窗缝隙中被挤压出去,新风机持续工作,室外空气源源不断的被送入室内,室内空气持续被置换,这样一来甲醛等有害物质自然就被稀释到远低于合格标准的数值。
当然,上述的这种流程是壁挂式新风机的工作方式,新风机通常包括壁挂式和管道式两种,管道式新风机采用的是主动送风和主动排风的工作方式,会在室内布设送风管道和排风管道,因此需要在装修的时候就一并安装,否则装修完成后基本没有再安装的可能性了,而壁挂式新风机则完全没有这种顾虑,安装更加灵活,而且安装成本也相对要便宜许多。
这款米家新风机就是典型的壁挂式新风机代表。
米家新风机的使用体验

这是2018年11月份刚刚安装完成时拍的图片,其实在安装完成后,我是利用手里的各种测试设备做过非常详细的数据测试的,事实证明,在这台新风机7*24小时的不间断工作下,我家的室内控制质量一直都保持在一个非常优秀的状态,

这是当时持续监测的一个数据,从监测结果看,室内空气的PM2.5指数始终保持在个位数的状态,而甲醛含量则始终保持在0.01mg/m的状态,这个数据是远远低于国标的0.08mg/m的。



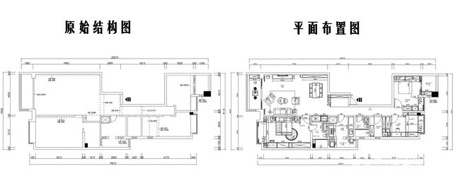
讲真的,我看到这套房子的原始户型图时,第一感觉就是很不好,厨房在中间,南北过道很狭长,中间还有一个大缺角。但装修就是如此神奇,在改造的时候可以把诸多不完美全给修饰掉。
改后的平面布置增加了一处玄关,保留了所有卧室供一家三口日常生活,下面就随我一起去看实景!
玄关

入户第一处就很接地气,不论是功能还是色彩搭配,都叫人很喜欢,酱色的大门也没有做任何的修饰,非常自然。

“L”型的鞋柜靠近室内处并没有做宽,而是在边上增加一个通透的屏风,这样做非常赞,进门后不会感受到迎面而来的压抑感,而且让空气对流的同时,化解在大门处将室内看光的尴尬。
进来后就是客餐厅了,两厅连在一起选择统一的现代布置,我们分别来看具体细节。
客厅细节

![[刺猬篮球]率队两年三次战胜中国男篮,对于两岸球员差异,他这样说](https://www.lu-xu.com/pic.php?url=https://pics4.baidu.com/feed/a8ec8a13632762d021c303f35406d8f2533dc6f5.jpeg?token=9fd0202aff0edcdee4ef6eb8ca68b35f)

随后两年内,他再次带队战胜国字号球队:
2013年东亚运动会男篮决赛上,又是落后的情况,许晋哲率队填补13分的大坑,最终以82比793分险胜国奥队,夺得金牌。
2014年7月,在武汉举行的亚洲杯篮球赛上,许晋哲带领中国台北队以84比73取胜,对手同样是国奥队。

两年三胜的战绩让当时42岁的许晋哲名声远扬,备受圈内关注,从而也收获了CBA球队抛来的橄榄枝。
2015年5月,与山西汾酒男篮俱乐部达成意向,签约成为主教练。虽然在CBA战绩一般,但他的独到见解仍然让不少球迷认为专业。

作为CBA、SBL双料教头,深耕职业赛场多年的篮球人,对于内地和台湾球员有着自己独特的看法。
“大陆是职业联赛,所以说我努力之后,只要被教练看到或者我打出成绩,我的薪水能三级跳。可是台湾,你即使再努力,如果不走出去大概就是这个样子。”
![[刺猬篮球]率队两年三次战胜中国男篮,对于两岸球员差异,他这样说](https://www.lu-xu.com/pic.php?url=https://pics1.baidu.com/feed/50da81cb39dbb6fd2bc14cd0ffce7b10952b37a5.jpeg?token=28378905bb94822a56083f8222589d8f)
![[刺猬篮球]率队两年三次战胜中国男篮,对于两岸球员差异,他这样说](https://www.lu-xu.com/pic.php?url=https://pics4.baidu.com/feed/a8ec8a13632762d021c303f35406d8f2533dc6f5.jpeg?token=9fd0202aff0edcdee4ef6eb8ca68b35f)

随后两年内,他再次带队战胜国字号球队:
2013年东亚运动会男篮决赛上,又是落后的情况,许晋哲率队填补13分的大坑,最终以82比793分险胜国奥队,夺得金牌。
2014年7月,在武汉举行的亚洲杯篮球赛上,许晋哲带领中国台北队以84比73取胜,对手同样是国奥队。

两年三胜的战绩让当时42岁的许晋哲名声远扬,备受圈内关注,从而也收获了CBA球队抛来的橄榄枝。
2015年5月,与山西汾酒男篮俱乐部达成意向,签约成为主教练。虽然在CBA战绩一般,但他的独到见解仍然让不少球迷认为专业。

作为CBA、SBL双料教头,深耕职业赛场多年的篮球人,对于内地和台湾球员有着自己独特的看法。
“大陆是职业联赛,所以说我努力之后,只要被教练看到或者我打出成绩,我的薪水能三级跳。可是台湾,你即使再努力,如果不走出去大概就是这个样子。”
![[刺猬篮球]率队两年三次战胜中国男篮,对于两岸球员差异,他这样说](https://www.lu-xu.com/pic.php?url=https://pics1.baidu.com/feed/50da81cb39dbb6fd2bc14cd0ffce7b10952b37a5.jpeg?token=28378905bb94822a56083f8222589d8f)

入户位置的门原本是猪肝色的太难看了,户主用背胶门贴给整个门换了一张好看的脸,瞬间颜值直线上升。
对小户型来说,将玄关这个位置好好布置一下,你会发现原来这么小的地方,却有这么高的实用性!

户主给自家玄关做了一些简单的布置,虽然简单但一家人的日常使用也是完全足够了,进门的左手边设立了一个白色的成品鞋柜,收纳一家人的鞋子基本没啥问题,鞋柜的旁边摆放了一个木色的置物架,主要放置一些喜欢的装饰品、照片和小件的日用品等。

鞋柜的对立面是玄关柜,其背面放了一把换鞋凳,平时出入门换鞋子的时候就不用老蹲在地上了,家里有老人和小孩的“换鞋凳”一定要有。


为了让客厅的面积更大,将客厅和阳台的推拉门给打掉了,把整个休闲阳台包进客厅,少了中间的隔断之后空间通透,自然采光效果也更好了,客厅整个空间从视觉效果看上去也宽阔了很多。


朝北的休闲阳台是他家光线最好的地方,平时在这里打理打理花花草草,打发打发时间还是挺不错的。



户主家的软装整体以木质家具为主,客厅搭配原木风的茶几、边几、电视柜,让整个空间变得舒适又温馨,超喜欢原木风家具的那种质感。


沙发旁边放了一盆百合竹,和浅绿色的沙发以及原木风的家具很搭,让整个空间变得更加有活力了。
餐厅





入户位置的门原本是猪肝色的太难看了,户主用背胶门贴给整个门换了一张好看的脸,瞬间颜值直线上升。
对小户型来说,将玄关这个位置好好布置一下,你会发现原来这么小的地方,却有这么高的实用性!

户主给自家玄关做了一些简单的布置,虽然简单但一家人的日常使用也是完全足够了,进门的左手边设立了一个白色的成品鞋柜,收纳一家人的鞋子基本没啥问题,鞋柜的旁边摆放了一个木色的置物架,主要放置一些喜欢的装饰品、照片和小件的日用品等。

鞋柜的对立面是玄关柜,其背面放了一把换鞋凳,平时出入门换鞋子的时候就不用老蹲在地上了,家里有老人和小孩的“换鞋凳”一定要有。


为了让客厅的面积更大,将客厅和阳台的推拉门给打掉了,把整个休闲阳台包进客厅,少了中间的隔断之后空间通透,自然采光效果也更好了,客厅整个空间从视觉效果看上去也宽阔了很多。


朝北的休闲阳台是他家光线最好的地方,平时在这里打理打理花花草草,打发打发时间还是挺不错的。



户主家的软装整体以木质家具为主,客厅搭配原木风的茶几、边几、电视柜,让整个空间变得舒适又温馨,超喜欢原木风家具的那种质感。


沙发旁边放了一盆百合竹,和浅绿色的沙发以及原木风的家具很搭,让整个空间变得更加有活力了。
餐厅





整个游戏是我真的很喜欢现代科幻的设定,也玩过其他许多同类型的手游,但大多都是古风的,我是真的玩不来古风设定的手游,所有我对龙族印象还是挺深的。当然,印象很深的一大部分原因,还是因为这款游戏其实十足的烂。
可能因为是现代风吧,感觉人物可捏的范围很大,而且相比于别的古风设定同类型手游,我更喜欢彩色头发的妹妹。所以龙族幻想的捏脸我还是捏得比较舒服的,我刚开始玩游戏的时候就有氪金的意思了,不过那个时候零氪或者微氪也能玩。

真的好怀念之前一起参加社团活动,一起打本的日子,后来我的师傅和朋友都退坑了,我也因为学习退坑了,现在毕业了暑假也没有什么事情可以做,打算下回来再玩玩祝我好运。
回来了,最大的遗憾就是之前的社团现在已经没有了,列表里也是没多少人上线啦,可能我真的不怎么在乎强度吧所以在强度方面到是没有什么感觉,不过在服装方面和以前一样不氪金除了可以白嫖的衣服其他活动的服装是基本抽不到的。
商场里的衣服到了可以买的时间却提醒买不了,听说要氪金满足了一个金额才能购买(真不愧是你啊鹅厂)回归后发现之前需要氪月卡(姑且就这么叫)才能有的衣服现在商场里的常驻了,当时要不是因为是月卡限定的衣服我真的不会去氪他。

而且偶像职业真的好枯燥啊啊啊啊,除了挂机升级还有搭配服装真的没有别的玩发了,然后发现金币比以前要消耗得快了,还另加了一个需要抽卡的玩法。这个游戏绝对不能当作像是王者荣耀那样的高强度战斗类游戏那么玩,当个休闲游戏玩错错有余,剧情方面见仁见智,个人感觉剧情很不错。
pve模式也就那样,正常水准,但这匹配模式属实有点坑人啊,除了房主可以操控房间里其余的人基本上就是工具人跟着到处跑,而且匹配到人的时候超级少,哪怕给我弄点人机也行啊。

活动氪金也见怪不怪了,以徽章为例,高级徽章定价偏高也就算了,因为匹配不到人导致任务完成的巨慢,单人挑战还没有难度降低导致全程被怪吊打,没有氪下去的动力啊,人物的建模还好,联动的EVA做得跟玩具似的,还超难获取
PVP模式匹配到人战力严重不平衡,不是躺赢就是被暴打,辅助类的职业在同等级同装备的情况下攻击力比那些主输出的职业还高。


整个游戏是我真的很喜欢现代科幻的设定,也玩过其他许多同类型的手游,但大多都是古风的,我是真的玩不来古风设定的手游,所有我对龙族印象还是挺深的。当然,印象很深的一大部分原因,还是因为这款游戏其实十足的烂。
可能因为是现代风吧,感觉人物可捏的范围很大,而且相比于别的古风设定同类型手游,我更喜欢彩色头发的妹妹。所以龙族幻想的捏脸我还是捏得比较舒服的,我刚开始玩游戏的时候就有氪金的意思了,不过那个时候零氪或者微氪也能玩。

真的好怀念之前一起参加社团活动,一起打本的日子,后来我的师傅和朋友都退坑了,我也因为学习退坑了,现在毕业了暑假也没有什么事情可以做,打算下回来再玩玩祝我好运。
回来了,最大的遗憾就是之前的社团现在已经没有了,列表里也是没多少人上线啦,可能我真的不怎么在乎强度吧所以在强度方面到是没有什么感觉,不过在服装方面和以前一样不氪金除了可以白嫖的衣服其他活动的服装是基本抽不到的。
商场里的衣服到了可以买的时间却提醒买不了,听说要氪金满足了一个金额才能购买(真不愧是你啊鹅厂)回归后发现之前需要氪月卡(姑且就这么叫)才能有的衣服现在商场里的常驻了,当时要不是因为是月卡限定的衣服我真的不会去氪他。

而且偶像职业真的好枯燥啊啊啊啊,除了挂机升级还有搭配服装真的没有别的玩发了,然后发现金币比以前要消耗得快了,还另加了一个需要抽卡的玩法。这个游戏绝对不能当作像是王者荣耀那样的高强度战斗类游戏那么玩,当个休闲游戏玩错错有余,剧情方面见仁见智,个人感觉剧情很不错。
pve模式也就那样,正常水准,但这匹配模式属实有点坑人啊,除了房主可以操控房间里其余的人基本上就是工具人跟着到处跑,而且匹配到人的时候超级少,哪怕给我弄点人机也行啊。

活动氪金也见怪不怪了,以徽章为例,高级徽章定价偏高也就算了,因为匹配不到人导致任务完成的巨慢,单人挑战还没有难度降低导致全程被怪吊打,没有氪下去的动力啊,人物的建模还好,联动的EVA做得跟玩具似的,还超难获取
PVP模式匹配到人战力严重不平衡,不是躺赢就是被暴打,辅助类的职业在同等级同装备的情况下攻击力比那些主输出的职业还高。


两居室,户型上中规中矩,空间小,但是也能满足三餐四季,将小日子过成诗的感觉。屋主特别喜欢这个来之不易的小家,入住这两年的时间东西很多,但是都会把空间利用起来,并且收拾整洁干净,保持家的味道。

一进来是没有真正意义的玄关,入户门口的旁边布置了比较薄小的鞋柜,可以适当增加蛮不错的储物空间。大门上有个磁吸的花伞置物架,可以方便挂雨伞,特别棒。猫眼是不可缺少的一部分,不过当初选择的是电池的,并不是那么耐用。鞋柜墙上的利用,安装了洞洞板,其实就是挡住后面的配电箱,遮挡起来比较美观。同时洞洞板可以适当挂一些小物件的东西。还专门有挂钥匙挂钩,这也是不可缺少的一部分。

门口放着一张北欧风格非常流行的地垫,可以起到很好的防尘作用,让人进来进来眼前一亮,特别温馨。门上挂雨伞,还配备了一个接水的盒子,不会担心雨伞带水室内,考虑真周到,细节处理特别完美。



两居室,户型上中规中矩,空间小,但是也能满足三餐四季,将小日子过成诗的感觉。屋主特别喜欢这个来之不易的小家,入住这两年的时间东西很多,但是都会把空间利用起来,并且收拾整洁干净,保持家的味道。

一进来是没有真正意义的玄关,入户门口的旁边布置了比较薄小的鞋柜,可以适当增加蛮不错的储物空间。大门上有个磁吸的花伞置物架,可以方便挂雨伞,特别棒。猫眼是不可缺少的一部分,不过当初选择的是电池的,并不是那么耐用。鞋柜墙上的利用,安装了洞洞板,其实就是挡住后面的配电箱,遮挡起来比较美观。同时洞洞板可以适当挂一些小物件的东西。还专门有挂钥匙挂钩,这也是不可缺少的一部分。

门口放着一张北欧风格非常流行的地垫,可以起到很好的防尘作用,让人进来进来眼前一亮,特别温馨。门上挂雨伞,还配备了一个接水的盒子,不会担心雨伞带水室内,考虑真周到,细节处理特别完美。



1、笨重的挂烫机
现在基本上每个上班族的家里面都会有一个落地式的挂烫机。

但是用了之后才发现落地式挂烫机,这种非常占地方,而且只能放在固定的地方使用,落地式挂烫机的水箱换水也很麻烦,如果不经常换水的话,还会滋生细菌。

久而久之挂烫机就会被闲置,要么是放在角落里面积灰,要么是放进柜子里面,再也看不到他的身影逐渐被遗忘。

我建议大家可以换成手持式的挂烫机,经常穿的衣服,上班要用的衣服,挂烫机确实是我们家里面的必备品,但是手持挂烫机不会有落地式挂烫机的笨重感。

手持挂烫机体积小巧,即使是出门旅游也可以随身携带。

而且使用方法也非常简单,直接将衣服平铺熨烫就可以了,手持式挂烫机的水一次大概就是一件衣服的料,而且还可以给宝宝的毛绒玩具进行消毒。


这样就没有了,需要经常换水的麻烦,也不用担心会滋生细菌。

2、毫无用处的抖脂机
相信很多人在逛商场的时候都会看到商场里面的抖脂机,据说只要每天在家里面抖一抖就可以甩掉脂肪,站着不动就能减肥,真的很吸引人。

但是买回家使用之后才发现其实一点又没有,一个月过去了,不仅一斤肉没掉,还倒长了几斤肉。
而且如果站在抖脂机上就能减肥的话,那现在应该有很多瘦子了吧。

而且平时在家里面除了家务可能还会照看孩子,其实根本没有多少自己的时间,久而久之抖脂机长时间不用也会被我们闲置。

3、空有颜值的水龙头
现在很多年轻人在购买水龙头时都在考虑颜值高的水龙头,似乎觉得颜值高的水龙头能让生活质量也变得高级。







![[直播吧]基德:波神完美契合077 这两年从湖人学到了很多](https://file.lu-xu.com/tu/49.jpg)