武力不是
拍卖标的简介
交通和地理位置
阳光嘉园小区位于山西省介休市城市交通主干道——三仙大道公安局对面。位于规划的行政办公区中心,周边道路四通八达,出行方便,地理位置优越。
社区环境
小区内的住宅楼为11层板式小高层建筑,配有电梯。容积率低,绿化率高,环境优美,停车方便,居住舒适。
武力不是
支持和财产
小区所属物业全部通电、通讯、供暖、供气、供水,小区场地平整,内部道路修复良好;住宅物业管理规范,服务全面,价格实惠;周边商家、幼儿园、中小学设备齐全。
武力不是
住宅和地下室目标
此次拍卖的目标是阳光嘉园小区的11套住宅及其地下室,其中5套室内建筑采用优质产品装饰。入口门为防盗门,墙面为白色,窗户为塑钢,地面铺名牌瓷砖,缝制精美,门为优质木门,其余6套为毛坯房。所有的房子都通电了,有水、煤气和地暖。
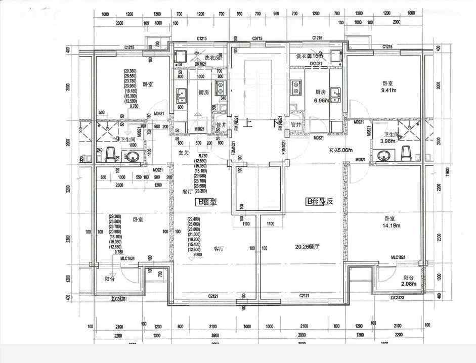
建筑面积89.22平方米
93.91平方米的平面图
室内现实生活地图
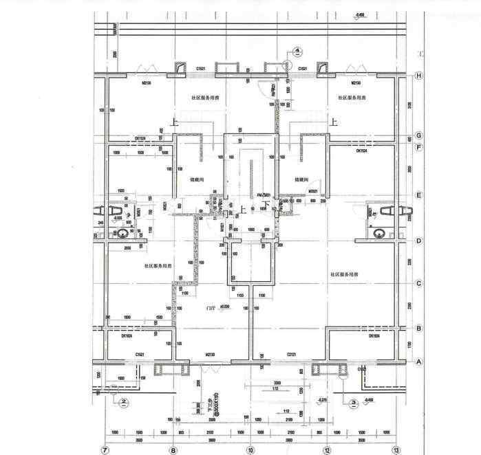
配套商业门面住房标准
本次拍卖的门面房屋与主街相邻,上下两层,内饰空白。门由不锈钢玻璃制成,窗户由塑钢制成,与水、电和暖气相连。房屋基础工程完好,地基有足够的承载力;结构工程完好,梁板柱墙屋架平直牢固,无倾斜变形、松动、腐朽和腐朽;设备安装和外装饰工程维护完好。
房地产拍卖公告
受委托,山西中润恒成机动车拍卖有限公司拟于2020年2月23日在山西省介休市太岳东路288号会议室举行房地产现场公开拍卖。具体拍卖项目公告如下:
1.26个拍卖标的:阳光嘉园小区11套住宅,配套商业建筑15套
二.拍卖方式:这种拍卖方式是现场拍卖。投标人必须通过现场标语牌投标的方式参与本次拍卖。
三.投标人资格:凡符合国家法律法规要求的企业法人或自然人均可参加投标。有兴趣的投标人应持投标保证金缴纳证明和有效身份证明到指定地点办理投标手续。
四、投标保证金说明:申请号牌,需要缴纳投标保证金
预览位置:目标位置
报名时间:2020年2月17日8:30至2020年2月21日
注册地点:山西省太原市南中环街圣湖观澜国际14号楼3单元902室,介休市太岳东路288号
联系人:张先生
特别提示:
1.该拍卖俱乐部拍卖的房产为危旧房改造工程剩余住宅及住宅配套商品房;
2.目前本次拍卖无法取得产权证,可在国家相关政策出台后办理,手续费由买受人承担;
3.拍卖结束后,买受人应在7日内全额支付成交价款,并与委托方签订房屋买卖合同。7日内未付款的,每延期一天,支付成交价千分之一的滞纳金。逾期超过15日的,视为违约,依照拍卖法的有关规定处理。
4.拍卖完成后,扣除佣金后的投标保证金剩余部分将在完成相关程序后返还给买方。未中标人的保证金应在三天内退还到我指定的账户。
5.拍卖订单以现场收到的拍卖目录为准。
6.拍卖对象将根据预览状态进行拍卖。竞买人知道拍卖人对拍卖标的质量瑕疵不承担任何责任。拍卖人提供的财产目录、描述、说明或者评估意见应当作为参考建议,并不构成对拍卖标的的任何保证或者担保。竞买人应当自行查验拍卖标的原件,并对其竞买行为承担法律责任。标的物实际情况与拍卖数据有差异的,以标的物现状为准,差异不影响拍卖价格。
山西中润衡城机动车拍卖有限公司
2020年1月11日
附表:介休阳光嘉园小区房地产拍卖清单
万水千山总在恋爱,你看不出来吗▼
1.《介休房产 拍卖!介休某小区26套房子,向社会公开拍卖!》援引自互联网,旨在传递更多网络信息知识,仅代表作者本人观点,与本网站无关,侵删请联系页脚下方联系方式。
2.《介休房产 拍卖!介休某小区26套房子,向社会公开拍卖!》仅供读者参考,本网站未对该内容进行证实,对其原创性、真实性、完整性、及时性不作任何保证。
3.文章转载时请保留本站内容来源地址,https://www.lu-xu.com/guonei/1640921.html


